MAC Panamá
Culture - Panama City, Panama
2026
Competition
Lead architects: Ilias Oikonomakis, Angelos Siampakoulis
Team: Claire Dutreuil, Saga Persson
Conceived as the new home for the Contemporary Museum of Art in Panama City, the proposal for MAC Panamá is imagined as a living architectural landscape - an integrated composition of built form, vegetation, and public space that reflects the country’s terrain, climate, and cultural hybridity.
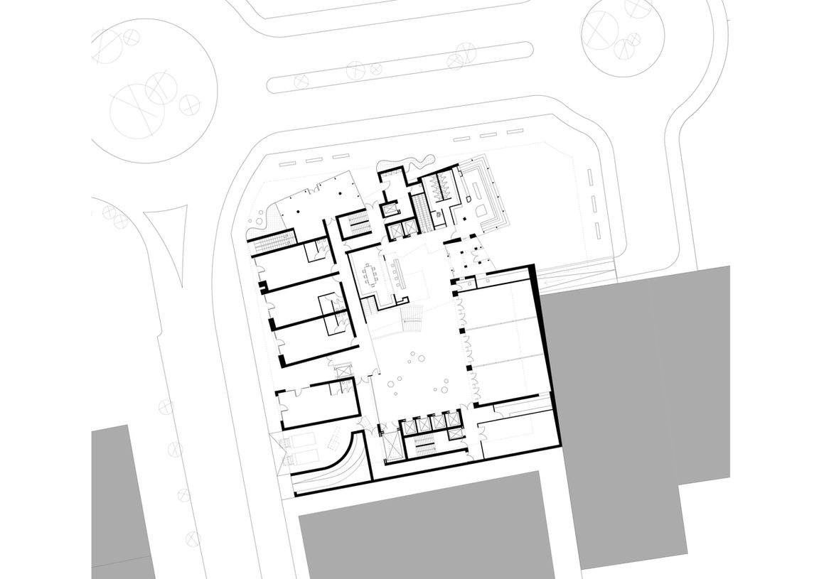
The building is organised as a clustered arrangement of brick volumes that unfold around a central triple-height atrium. This spatial core operates as the civic and atmospheric heart of the project, where filtered natural light enters through a timber-and-glass roof, revealing key internal elements including the archive, a sculptural circulation spine, and the elevated exhibition galleries. The atrium is conceived not simply as a void, but as an inhabitable interior landscape that orchestrates movement, orientation, and encounter.
The façades are defined through the use of five locally sourced and crafted brick typologies, each contributing subtle variations in tone, texture, and assembly. This material strategy pays direct homage to regional craftsmanship while establishing a nuanced architectural identity rooted in place. Complemented by structural timber and large glazed surfaces, the composition balances mass and openness, permanence and transparency.
The roofscape extends the architectural field into a “fifth elevation,” transforming the upper plane into an active landscape of terraces. Finished with vibrant ceramic elements and planted with native vegetation, these elevated gardens contribute both to the building’s environmental performance and to its visual identity within the city.
Programmatically, the museum is carefully zoned to articulate distinct yet interconnected public experiences. Exhibition spaces are positioned along the quieter southern edge, ensuring controlled environmental conditions and contemplative atmospheres. In contrast, public, commercial, and administrative functions activate the northern and western perimeters, reinforcing permeability and urban engagement. A carefully positioned civic plaza mediates between building and city, structuring a gradual and layered approach to entry.
Sustainability is embedded as a fundamental design driver rather than a supplementary strategy. Passive shading systems, thermal massing, rainwater collection, and the use of locally sourced materials collectively reduce environmental impact while enhancing long-term resilience.
Structurally, the project combines a solid concrete base and core system with a more flexible composite structure for the gallery spaces, culminating in a lightweight timber atrium. This deliberate contrast establishes a dialogue between strength and lightness, tradition and innovation, grounding the museum both physically and conceptually within its context.

















































